一网搜 登录| 注册

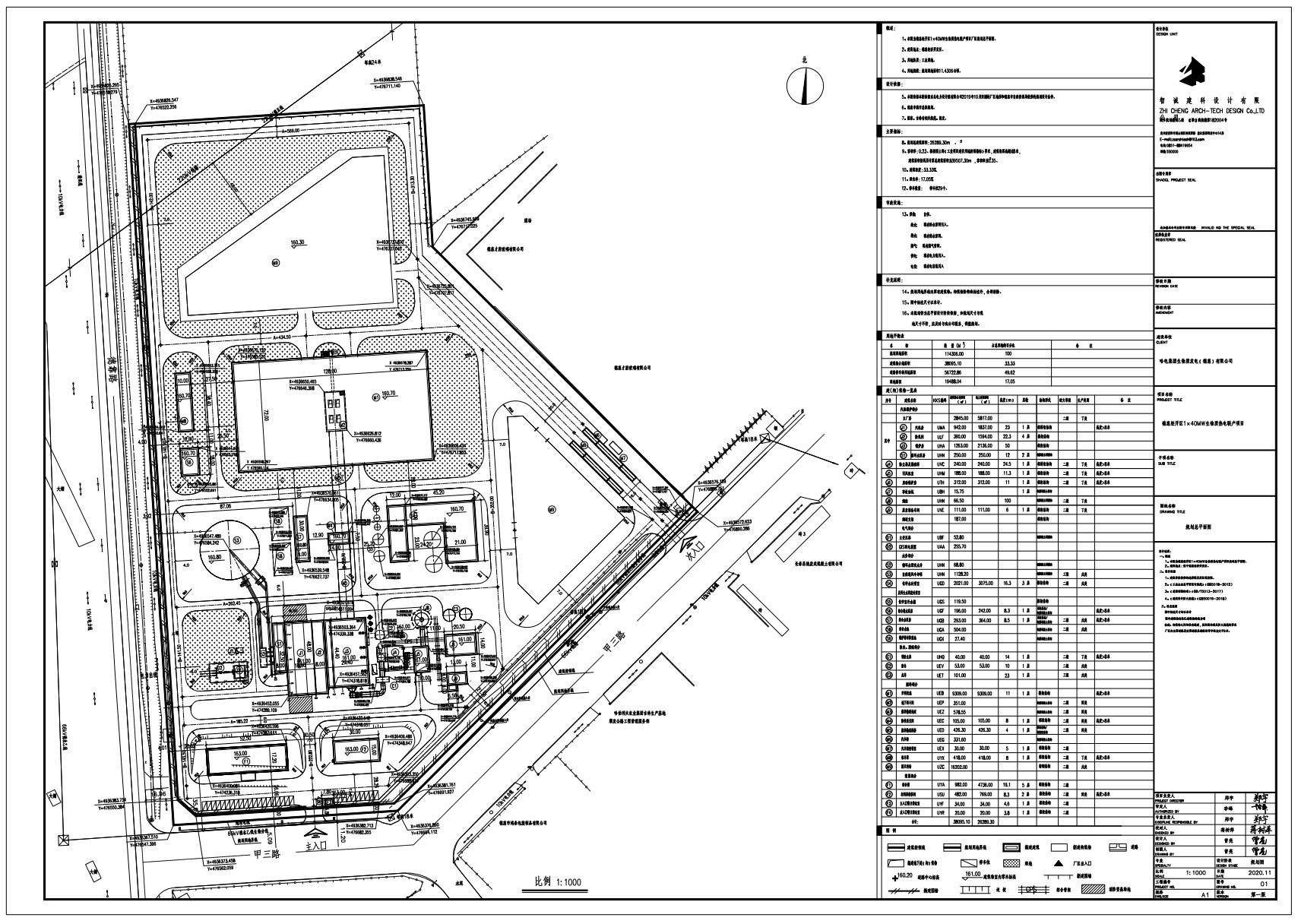
德惠经开区1×40MW生物质热电联产项目规划许可前公示

时间: 2020-11-18 07:48来源:德惠市自然资源局
【字体: 打印

  项目名称:德惠经开区1×40MW生物质热电联产项目

  建设地址:德惠市经济开发区 德靠路与甲三路交汇处

  建设单位:哈电集团生物质发电(德惠)有限公司

  公示时限:自20201117日起不少于7
  意见反馈: 

  1、征求相关利害关系人意见,如有意见请在公示期内(不含法定节假日)以书面形式提交或提出书面听证申请

  2、网上查阅:德惠市人民政府网站

  3、德惠市城乡规划管理中心

  联系电话:0431-872381770431-87216511

  4、建设单位:哈电集团生物质发电(德惠)有限公司

  联系电话:13936524505